德国工业4.0智造

  • 健康环保
  • 免费服务
  • 三年质保
  • 本地体验
首页 > 案例中心 > 欧式 > 欧式典雅

欧式典雅 3973

185㎡#三室两厅两卫#欧式

案例介绍
内蒙古自治区 - 赤峰市 - 克什克腾旗 佳美小区

业主喜欢养花,所以家里到处都摆满了花花草草,增加了空间的活跃气氛。家装家具一体价:30万。

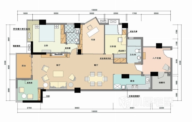
户型图

简欧时尚的装修风格,喜欢简单的美,用最简单的线条和方法,表达悠远的意韵。很现代很时尚!
进门又手边放了一个壁柜,使常用的物品有了属于自己的归属,衣服也可以随挂起来。
此款欧式的斑驳纹理满铺了整个餐厅,餐桌上随意摆放着的茶具与周围的盆景相呼应,使得空间庄重与典雅。尽显优雅闲逸。
朋友喜欢来这边做客,因为家人的热情好客,因为居室的美丽宽敞。
一个这样充满艺术气息的空间当然是不能少了绿色的点缀。
大量墙面都贴上了墙纸,加之原色和白色的结合,使空间层次分明而又丰富完整。
半开放式的厨房,让你烹饪的时光也充满好心情。
睡觉的地方,必须是自己满意的,不然怎么可以安睡到天明呢?
内蒙古自治区-赤峰市
设计经验6 作品14
  • 现代
  • 欧式
  • 简约
  • 硬装设计
  • 软装配饰设计
  • 产品陪购

免费申请设计

设计师上门服务全程免费,禁止以任何形式收取费用。

请输入验证码

验证码输入错误