德国工业4.0智造

  • 健康环保
  • 免费服务
  • 三年质保
  • 本地体验
首页 > 案例中心 > 美式 > 美式经典

美式经典 7438

148㎡#三室两厅两卫#美式

案例介绍
河南省 - 许昌市 - 禹州市 恒达御园

美式风格,体现为高大,在单层套房里面,特别是小户型,很难完美的体现美式的特点,所以 此套方案以美式元素点缀,造型的构造完美体现了美式装修风格,后期配以美式的家具及摆件,会更完美的体现美式的温馨。

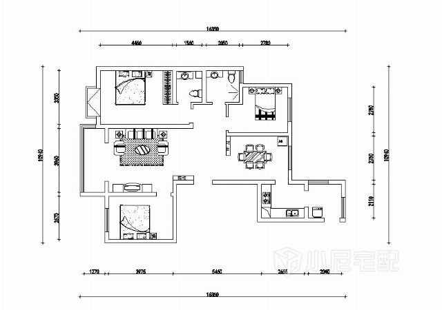
户型图

入户门厅的方形吊顶,线条式的菱形,餐厅吧台,更显温馨小屋。
超出客厅的沙发墙,放置鱼缸装饰,给生活添色彩。
美式风格,略加田园风,隐形门设计。
没有灯槽的造型直线吊顶,以简单的线条点缀,美式条纹壁纸突显造型。
梁下做统一圆角造型,更好的隐藏建筑的缺陷。
小卧室的榻榻米设计,小空间大利用。
红色木器漆工艺配合硬包,给床头背景墙加以点缀,弧形灯池在视觉上提升房高,温馨舒适的主卧室。
门口放置好看的美式鞋柜,上部装饰镜子,出门小打扮~~
河南省-许昌市
设计经验8 作品1
  • 现代
  • 中式
  • 美式
  • 欧式
  • 田园
  • 硬装设计

免费申请设计

设计师上门服务全程免费,禁止以任何形式收取费用。

请输入验证码

验证码输入错误