德国工业4.0智造

  • 健康环保
  • 免费服务
  • 三年质保
  • 本地体验
首页 > 案例中心 > 欧式 > 高层住宅

高层住宅 5818

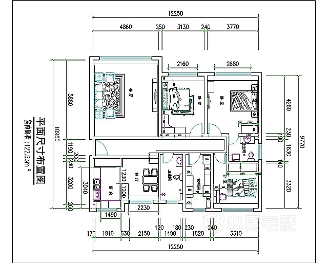
122.63㎡#四室两厅两卫#欧式

案例介绍
内蒙古自治区 - 赤峰市 - 林西县 丰泽园

欧式风格线条典雅优美,结合石材镜面设计使得整体空间感凸显出来,色彩白净亮丽

户型图

通过完美的曲线,精益求精的细节处理,带给家人不尽的舒服触感
欧式风格线角变化丰富,家具及灯饰都略显欧式特色并有一定的文化氛围。
现代欧式的居室有的不只是豪华大气,更多的是惬意和浪漫
墙面简洁的黄色乳胶漆造型平添几许生活气息
线条简洁的欧式床展现现代风格,高贵、典雅又不失浪漫气质,欧式床大多色彩典雅、线条简洁,适用于展现现代风格的居室
欧式豪宅中摆放的那些家具,均以质地上好的胡桃木、樱桃木以及榉木为原料,制成具有线条美感的家具
从整体到局部、从空间到室内陈设塑造,精雕细琢,给人一丝不苟的印象
在设计上追求空间变化的连续性和形体变化的层次感
和谐是欧式风格的最高境界。现代欧式厨房,令人耳目一新的厨房,这是开放式厨房带来的空间感受
内蒙古自治区-赤峰市
设计经验2 作品3
  • 现代
  • 中式
  • 欧式
  • 简约
  • 混搭
  • 硬装设计
  • 软装配饰设计

免费申请设计

设计师上门服务全程免费,禁止以任何形式收取费用。

请输入验证码

验证码输入错误