德国工业4.0智造

  • 健康环保
  • 免费服务
  • 三年质保
  • 本地体验
首页 > 案例中心 > 简约 > 尚城国际

尚城国际 4230

85㎡#两室两厅一卫#简约

案例介绍
山东省 - 德州市 - 德城区 尚城国际

  本案例设计简洁,空间几无多余赘饰,清爽的毫无负担。空间着重务实机能,以应主人所需。采用暖宜调性,大量运用木作温暖气氛。

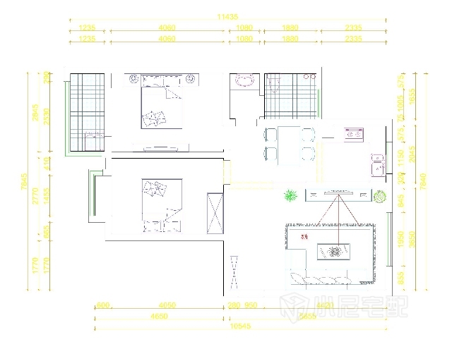
户型图

入门,即能将室内风光尽收眼底,一室朗朗开阔的景致,予人轻快舒宜之感受。
抓住众人目光的客厅主墙,其后以线条为饰,为空间注入一股时尚气息。
沙发主墙,展现清爽迷人的雅致风情,简洁设计令人快意欢欣。
摒弃玄关的设置,以增更多的室内空间,同时使格局方正完整,可谓一举二得。
放眼望去,厅区以清浅设色为基调,空间在大面留白中,搭以浅色木作,使空间兼具阔朗、温馨的双重优点,提供居者舒宜自在的居家情境与气氛。
雕花板的运用即保证了量好的采光,又增加美妙风景。
配色文雅、质感清新,整体气氛休闲惬意,深具舒压之效。
设计简洁的卧室,在设计师的用心设计下,一圆理想居家的美梦。

                               
423
北京市-通州区
设计经验5 作品1
  • 现代
  • 中式
  • 美式
  • 简约
  • 新古典
  • 地中海
  • 硬装设计
  • 软装配饰设计
  • 产品陪购

免费申请设计

设计师上门服务全程免费,禁止以任何形式收取费用。

请输入验证码

验证码输入错误