德国工业4.0智造

  • 健康环保
  • 免费服务
  • 三年质保
  • 本地体验
首页 > 案例中心 > 美式 > 御景花园

御景花园 4211

200㎡#别墅#美式

案例介绍
内蒙古自治区 - 赤峰市 御景花园

轻松,舒适,放松,这才是家

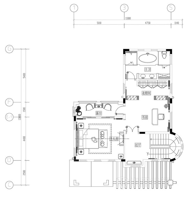
户型图

轻松 ,自在,舒适,放松
随意的客厅成为主人一回家就想待的惬意空间
礼拜天的午后躺在舒适的沙发上看部电影,是个多么美的享受
餐厅的装饰盘让这个空间更加灵动,带动了主人的食欲。
轻松休息,也是办公的主要场所。
自然、清新、放松闲聊的区域。
很喜欢这个屋子,沉稳,宁静
舒适惬意是卧室的基调。
北京市-丰台区
设计经验1 作品1
  • 欧式
  • 田园
  • 地中海
  • 硬装设计

免费申请设计

设计师上门服务全程免费,禁止以任何形式收取费用。

请输入验证码

验证码输入错误