德国工业4.0智造

  • 健康环保
  • 免费服务
  • 三年质保
  • 本地体验
首页 > 案例中心 > 现代 > 跳动的色彩

跳动的色彩 2011

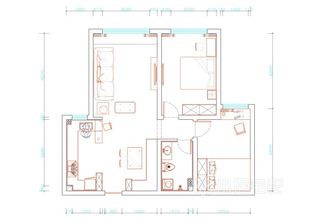
106㎡#两室两厅一卫#现代

案例介绍
内蒙古自治区 - 呼和浩特市 - 新城区 亿利傲东国际

用多变的色彩,给居室增添一份清新。

户型图


                               

                               

                               

                               

                               
内蒙古自治区-呼和浩特市
设计经验3 作品3
  • 现代
  • 简约
  • 硬装设计

免费申请设计

设计师上门服务全程免费,禁止以任何形式收取费用。

请输入验证码

验证码输入错误