德国工业4.0智造

  • 健康环保
  • 免费服务
  • 三年质保
  • 本地体验
首页 > 案例中心 > 现代 > 白色维度

白色维度 5165

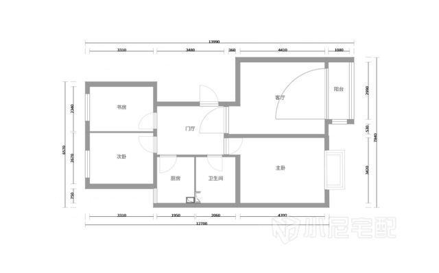
103㎡#三室一厅一卫#现代

案例介绍
北京市 - 怀柔区 金第梦想山

业主家一家三口,喜欢整洁干净,对白色很执着

户型图


                               

                               

                               

                               

                               

                               

                               

                               
北京市-怀柔区
设计经验4 作品6
  • 现代
  • 简约
  • 新古典
  • 硬装设计
  • 软装配饰设计

免费申请设计

设计师上门服务全程免费,禁止以任何形式收取费用。

请输入验证码

验证码输入错误