德国工业4.0智造

  • 健康环保
  • 免费服务
  • 三年质保
  • 本地体验
首页 > 案例中心 > 中式 > 满满的回忆

满满的回忆 3093

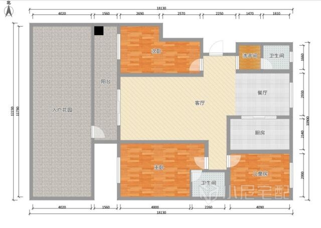
140㎡#三室两厅两卫#中式

案例介绍
山东省 - 聊城市 - 东昌府区 孟达国际

记忆中的温暖、、、、、、、、、、、、、、、

户型图


                               

                               

                               

                               

                               

                               

                               

                               
山东省-聊城市
设计经验5 作品5
  • 现代
  • 美式
  • 简约
  • 硬装设计
  • 软装配饰设计
  • 产品陪购
  • 施工监督

免费申请设计

设计师上门服务全程免费,禁止以任何形式收取费用。

请输入验证码

验证码输入错误