德国工业4.0智造

  • 健康环保
  • 免费服务
  • 三年质保
  • 本地体验
首页 > 案例中心 > 欧式 > 柔和高雅

柔和高雅 2680

120㎡#三室两厅一卫#欧式

案例介绍
辽宁省 - 丹东市 - 振兴区 中联江景


                       

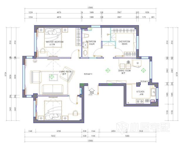
户型图


                               

                               

                               

                               

                               

                               

                               

                               

                               
辽宁省-丹东市
设计经验10 作品6
  • 现代
  • 中式
  • 欧式
  • 简约
  • 田园
  • 地中海
  • 硬装设计
  • 软装配饰设计
  • 产品陪购

免费申请设计

设计师上门服务全程免费,禁止以任何形式收取费用。

请输入验证码

验证码输入错误