德国工业4.0智造

  • 健康环保
  • 免费服务
  • 三年质保
  • 本地体验
首页 > 案例中心 > 现代 > 春天在哪里

春天在哪里 1641

80㎡#两室两厅一卫#现代

案例介绍
内蒙古自治区 - 鄂尔多斯市 - 东胜区 东联文青苑


                       

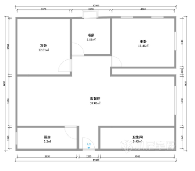
户型图

门厅
客厅
餐厅
主卧
次卧
卫生间
书房
内蒙古自治区-鄂尔多斯市
设计经验2 作品2
  • 现代
  • 欧式
  • 简约
  • 硬装设计
  • 软装配饰设计
  • 产品陪购
  • 施工监督

免费申请设计

设计师上门服务全程免费,禁止以任何形式收取费用。

请输入验证码

验证码输入错误