德国工业4.0智造

  • 健康环保
  • 免费服务
  • 三年质保
  • 本地体验
首页 > 案例中心 > 混搭 > 都市闲逸

都市闲逸 3458

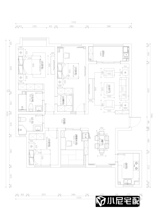
115㎡#四室两厅两卫#混搭

案例介绍
江苏省 - 苏州市 - 吴中区 阳光水榭花园


                       

户型图

客厅
餐厅
主卧 
主卫
次卧
儿童房
多功能房(一)
多功能房(二)
厨房
生活阳台
客卫
江苏省-苏州市
设计经验6 作品7
  • 现代
  • 中式
  • 欧式
  • 硬装设计

免费申请设计

设计师上门服务全程免费,禁止以任何形式收取费用。

请输入验证码

验证码输入错误