德国工业4.0智造

  • 健康环保
  • 免费服务
  • 三年质保
  • 本地体验
首页 > 案例中心 > 现代 > 现代简约

现代简约 2553

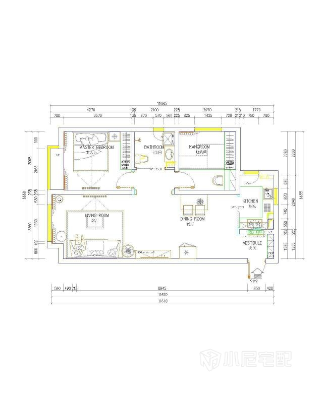
98㎡#两室两厅一卫#现代

案例介绍
辽宁省 - 丹东市 - 振兴区 万达华府


                       

户型图


                               

                               

                               

                               

                               

                               

                               
设计经验1 作品3

免费申请设计

设计师上门服务全程免费,禁止以任何形式收取费用。

请输入验证码

验证码输入错误