德国工业4.0智造

  • 健康环保
  • 免费服务
  • 三年质保
  • 本地体验
首页 > 案例中心 > 美式 > 沙河崖

沙河崖 3739

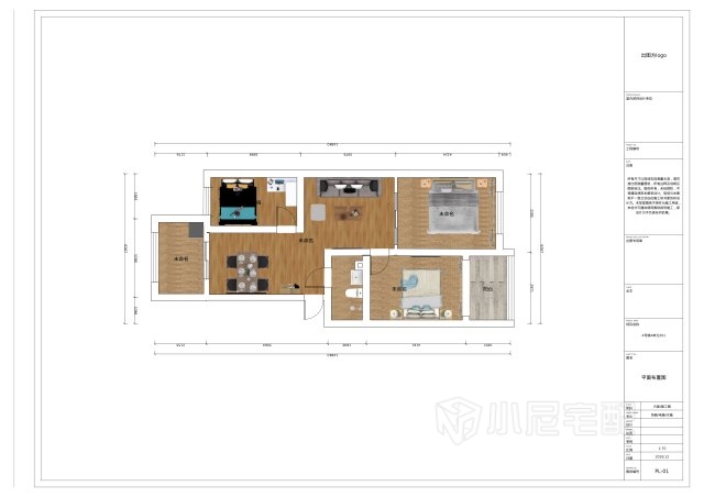
68.28㎡#三室两厅一卫#美式

案例介绍
山东省 - 烟台市 - 牟平区 沙河崖小区


                       

户型图

客厅影视墙
客厅沙发背景墙
沙发背景墙
餐厅效果
餐厅
主卧
主卧室
次卧室
厨房
卫生间
山东省-烟台市
设计经验9 作品7
  • 现代
  • 中式
  • 欧式
  • 硬装设计
  • 软装配饰设计
  • 产品陪购
  • 施工监督

免费申请设计

设计师上门服务全程免费,禁止以任何形式收取费用。

请输入验证码

验证码输入错误