德国工业4.0智造

  • 健康环保
  • 免费服务
  • 三年质保
  • 本地体验
首页 > 案例中心 > 欧式 > 米欧风情

米欧风情 8042

160㎡#四室两厅两卫#欧式

案例介绍
江苏省 - 苏州市 - 吴中区 保利悦都


                       

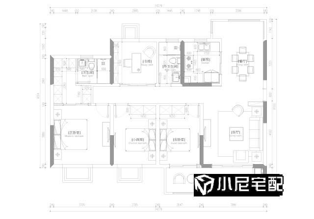
户型图

客厅一
客厅二
餐厅
主卧一
主卧二
次卧一
次卧二
小孩房一
小孩房二
书房
江苏省-苏州市
设计经验6 作品7
  • 现代
  • 中式
  • 欧式
  • 硬装设计

免费申请设计

设计师上门服务全程免费,禁止以任何形式收取费用。

请输入验证码

验证码输入错误