德国工业4.0智造

  • 健康环保
  • 免费服务
  • 三年质保
  • 本地体验
首页 > 案例中心 > 现代 > 鑫岭家园

鑫岭家园 2865

60㎡#一室一厅一卫#现代

案例介绍
河北省 - 廊坊市 鑫岭家园


                       

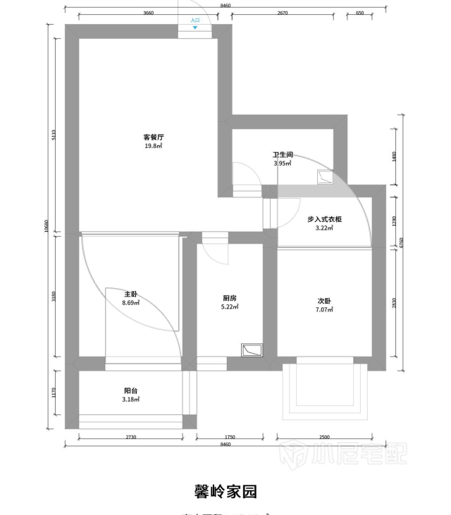
户型图

进门处衣柜鞋柜一体多功能柜兼顾两者,既增加储物空间也满足业主喜欢看书的爱好
电视墙采用白桦树背景壁纸,配合北欧风格家具,简约不简单
次卧室用整体推拉门做隔断,增加客厅采光通风
次卧放置800宽小衣柜合理利用空间
主卧为了照顾老人从中间安装推拉门隔断保暖性更好
主卧飘窗合理利用享受夏日暖暖的日光
厨房白色墙砖配合白色橱柜干净整洁
卫生间整体干净整洁原木色洗漱台增加色彩省得单调
1898
河北省-廊坊市
设计经验6 作品7
  • 现代
  • 美式
  • 欧式
  • 硬装设计
  • 软装配饰设计

免费申请设计

设计师上门服务全程免费,禁止以任何形式收取费用。

请输入验证码

验证码输入错误