德国工业4.0智造

  • 健康环保
  • 免费服务
  • 三年质保
  • 本地体验
首页 > 案例中心 > 现代 > 象牙海岸

象牙海岸 2687

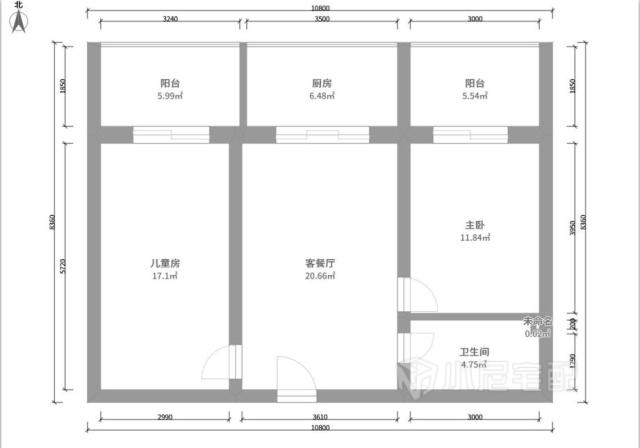
95㎡#两室两厅一卫#现代

案例介绍
北京市 - 顺义区 部队家属院


                       

户型图


                               

                               

                               

                               

                               

                               

                               

                               

                               

                               

                               

                               

                               
北京市-顺义区
设计经验4 作品12
  • 现代
  • 简约
  • 硬装设计
  • 软装配饰设计

免费申请设计

设计师上门服务全程免费,禁止以任何形式收取费用。

请输入验证码

验证码输入错误